Kőhomlokzatú műemlék épület energetikai felújítása
Csongrád, Bársony István Technikum
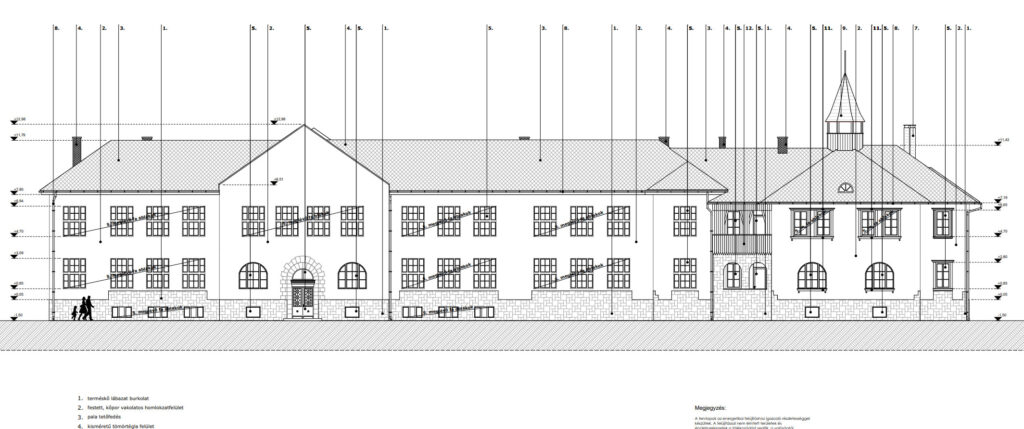
A Csongrád, Szentesi út 2/a alatti Bársony István Mezőgazdasági Technikum és Kollégium 1920-as években épült főépülete a város egyik meghatározó középülete.
A 2020 környékén megvalósult energetikai korszerűsítés célja az volt, hogy az iskola hőtechnikai mutatói elérjék a mai követelményeket, miközben a természetes kőből készült eredeti lábazat és a főbejárat boltíve megjelenésében megmaradjon.
Az eredeti kőhomlokzat megtartása korszerű hőszigeteléssel
A projekt egyik legfontosabb feladata az volt, hogy a kőburkolatot ne kelljen kibontani a szerkezetből – mert a homlokzati fal statikailag ép és védett maradt –, viszont az új, 16 cm EPS és 10 cm PIR ALU hőszigetelés után is megőrizze a kő karakterét.
A megoldás a 6 cm vastag, ragasztott természetes kő burkolóelemek beépítése lett, amelyek formában, textúrában és színben illeszkednek az eredeti mészkő homlokzathoz.
Ez az eljárás a világszínvonalú örökség-megőrző energetikai felújítások egyik legfontosabb mintája: az épület nem veszít karakteréből, mégis teljesíti a korszerű energiahatékonysági előírásokat.
Az épület keleti homlokzata és főbejárata
Az eredeti terméskő lábazat és bejárat
Korszerű, ragasztott kőburkolati technológia, a hagyomány és innováció egyensúlya
A kivitelezés során a mechanikai rögzítéssel kiegészített ragasztott burkolat technológiáját választották az átszellőztetett rendszerek helyett.
Tervezés
Első lépésként el kellett készíteni az új kőburkolat tervét, ami biztosította az épület homlokzatának eredetihez hasonló megjelenését. Mivel ún. „pofás” köveket kellett készíteni, melyek felülete a szélektől emelkedik, nem lehetett a helyszínen, a kivitelezés során beszabni a kőburkolat darabjait. Ezért a kőburkolati elemek pontos méreteit és elhelyezésüket már a tervezés során meg kellett határozni, ehhez pedig egy precíz kőkiosztási tervre volt szükség.
Ez a terv tartalmazta minden egyes kőelem műszaki rajzát a gyártáshoz, és szintén tartalmazta a mechanikai rögzítőelemek elhelyezését, amely így a kőelemekkel együtt pontos leírást adott a kivitelezés számára is.
Kőelemek gyártása
A kőelemek a jóváhagyott homlokzati terv alapján készülő műszaki rajzok segítségével készültek. A kőfaragók leszabták a nyers kőelemeket, majd ahol kellett, elkészítették a domború rész körüli „szalagokat” és kifaragták a kő domború részeit.
A lábazat és a boltív kőelemeinek elhelyezése a hőszigetelt homlokzatra
A hőszigetelő réteg – a talajszint alatt 10 cm PIR, a homlokzati síkon 16 cm EPS – alkalmas volt arra, hogy a 6 cm vastag új kőelemek biztonságosan felkerüljenek.
A kőlapokat fagy- és hőálló, nagy tapadóerejű flexibilis ragasztóval rögzítették a mechanikus rögzítés mellett, fugaközük páraáteresztő habarcs.
Az új lábazati kőelemek és boltívprofilok így pontosan visszaadják az eredeti architektúrát, ugyanakkor megfelelnek az MSZ EN 998-1 és ETAG 004 szerinti hőszigetelő-burkolati rendszerek előírásainak.
A megoldás technológiai előnye, hogy
- nem növeli meg túlságosan a szerkezet vastagságát,
- a ragasztott kapcsolat megszünteti a fagy- és vibrációs hőhidakat,
- karbantartás-barát, és
- megbízható, esztétikailag autentikus megjelenést nyújt.
Nemzetközi példák – mint az
IEA SHC Task 59
és a
Historic England
útmutatói – is kiemelik, hogy a vékony természetes kő lapburkolatok és a rugalmas ragasztott homlokzati rendszerek ma a műemléki felújítások egyik legjobban kontrollálható és energiatudatos megoldását jelentik.
Megmaradó terméskő felületek tisztítása és a kőburkolatok impregnálása
A felújítás záró szakaszában az új mészkő burkolatok elkészülte után megkezdtük az épület keleti homlokzatán és a többi oldalon megmaradt eredeti terméskő felületek szakszerű tisztítását. A több évtizedes légszennyezés, por, korom és kipufogógázok által lerakódott zsíros szennyeződés mellett a kőpórusokat teljesen benőtték a mikroorganizmusok, algák, mohák és zuzmók telepei.
A munkát kíméletes, de hatékony vegyszeres és mechanikus eljárással végeztük, amely során a kövek természetes szerkezetét és patináját nem sértettük meg.
A főbejárat és a keleti homlokzat kőfelületei kiemelten nagy terhelésnek vannak kitéve, mivel közvetlenül a főútvonal mellett helyezkednek el; ezért itt külön figyelmet fordítottunk a zsíros, korommal és olajmaradványokkal kevert szmoglerakódások eltávolítására.
A felületek teljes kiszáradása után az eredeti és az új kőfelületeket egyaránt impregnáltuk Fila Hydrorep vízlepergető impregnálószerrel, amely mélyen beszívódva megakadályozza a víz és a szennyeződések bejutását a pórusokba, miközben megőrzi a kő természetes páraáteresztését és megjelenését.
A tisztítás és impregnálás eredményeként a homlokzati kövek visszanyerték eredeti színüket, textúrájukat és tartósságukat, így hosszú távon is harmonikusan illeszkednek a hőszigetelt, korszerű épülethomlokzat karakteréhez.
Tanulság: a kőhomlokzat megőrzése nem zárja ki a korszerű hőszigetelést
A csongrádi projekt azt bizonyítja, hogy a természetes kő homlokzatok megőrzése és az energetikai korszerűsítés nem ellentétes célok.
A 6 cm vastag új mészkőkőelemek vizuálisan hasonló megjelenésűek mint az eredeti terméskő felület, mégis egy korszerű, jól hőszigetelt szerkezeten kaptak helyet.
A beavatkozás után az épület energiafelhasználása jelentősen csökkent, a homlokzat karaktere megmaradt, és az eredeti kőarchitektúra tovább él.
Ez a megoldás olyan mintapélda, amelyet más – hasonló történeti karakterű – műemlék és középületek esetében is követni lehet:
a kő maradhat kő, akkor is, ha mögötte korszerű hőszigetelés dolgozik.






